Omschrijving
Luxe 2 onder 1 kap met garage en oprit, zonnige tuin en 4 slaapkamers, voorzien van energielabel A.
Deze woning is instapklaar en gebouwd in 1995, met verrassend veel leefruimte, ideaal voor gezinnen met kinderen en volop comfort. Deze energiezuinige woning is volledig geïsoleerd (muur-, vloer- en dakisolatie) en voorzien van o.a. 9 zonnepanelen (2021), vloerverwarming op de begane grond en een inpandige garage. De woning is de afgelopen jaren flink gemoderniseerd met een nieuwe keuken, badkamer én separaat toilet (allen 2022). Een ideale plek voor gezinnen die op zoek zijn naar ruimte, comfort en een rustige woonomgeving.
De woning beschikt over een sfeervolle woonkamer met openslaande deuren naar de zonnige achtertuin op het westen, een moderne open keuken, vier slaapkamers en een praktische zolder.
Begane grond: leefruimte, comfort en inpandige garage
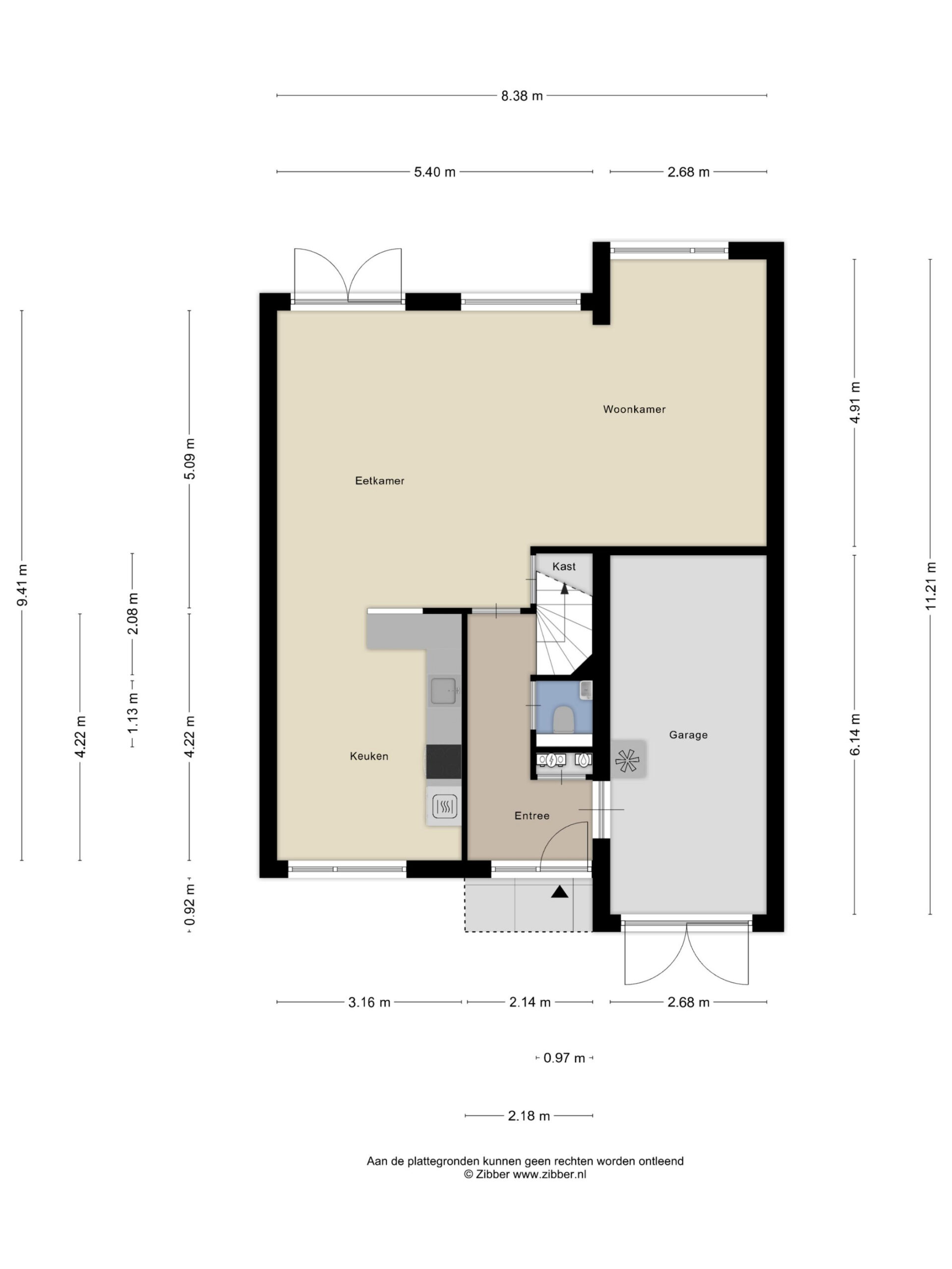
Bij binnenkomst valt de verzorgde afwerking direct op. De hal is voorzien van meterkast, separaat toilet (2022), trapopgang en toegang tot de inpandige garage. De tuingerichte woonkamer is licht en ruim, beschikt over vloerverwarming met nieuwe pvc-vloer en openslaande deuren naar de achtertuin. Aan de voorzijde bevindt zich de moderne open keuken (2022), compleet uitgerust met inbouwapparatuur: vaatwasser, koel-vriescombinatie, combi-oven/magnetron, afzuigkap en inductie kookplaat.
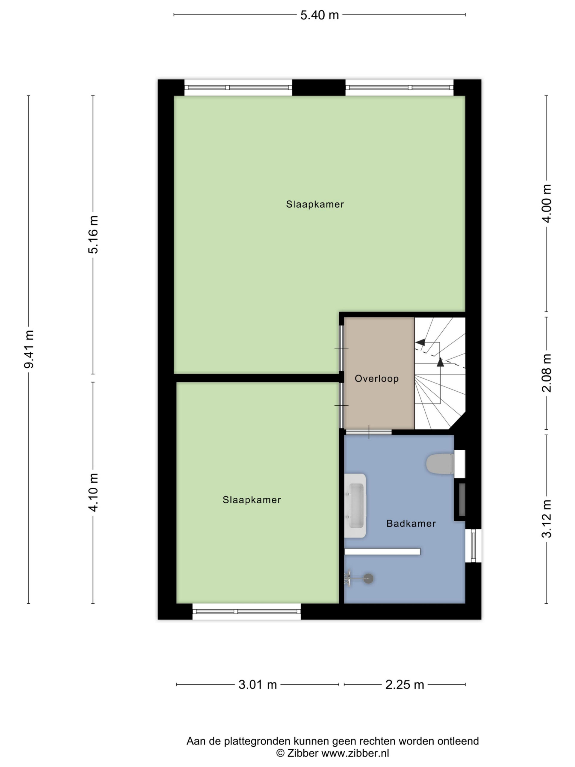
Eerste verdieping: twee slaapkamers en luxe badkamer
De overloop biedt toegang tot twee ruime slaapkamers en dat kunnen er met gemak ook weer 3 worden, want de slaapkamer aan de achterzijde is eenvoudig terug te brengen naar 2 slaapkamers. De moderne badkamer (2022) is stijlvol afgewerkt en voorzien van een inloopdouche, tweede toilet en wastafelmeubel.
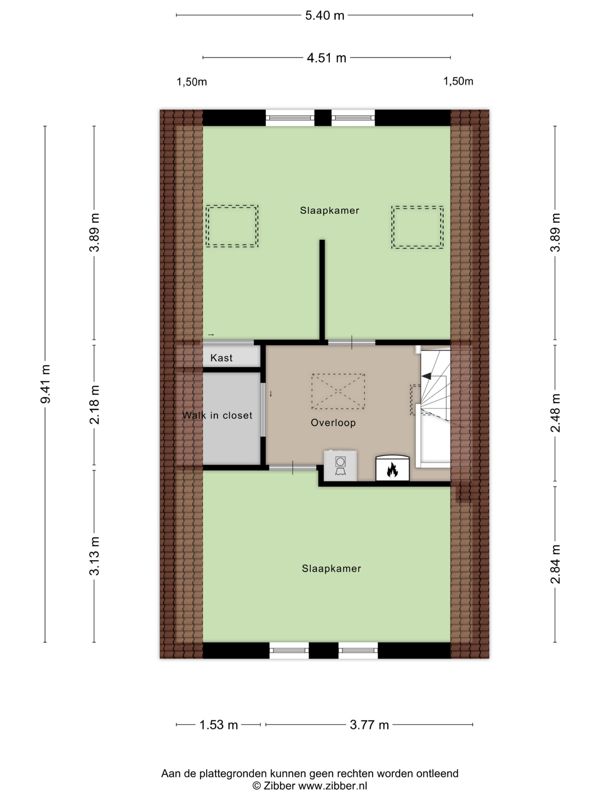
Tweede verdieping: extra slaapkamers en bergruimte
De tweede verdieping is praktisch ingedeeld met een overloop, inbouwkast, opstelplaats voor de cv-ketel (2016), wasmachineaansluiting en twee extra slaapkamers. Hiermee is de woning zeer geschikt voor een groot gezin of om werken en slapen te combineren.
Buitenruimte: zonnige tuin op het westen
De achtertuin is zonnig gelegen op het westen en biedt volop privacy. Dankzij de openslaande deuren vanuit de woonkamer en een achterom is de tuin goed bereikbaar en praktisch in gebruik. Recent is er nog een nieuw zonnescherm gemonteerd.
Bijzonderheden
– Goed onderhouden geschakelde 2-onder-1-kapwoning in Kampen
– Bouwjaar 1995
– Energielabel A
– Volledig geïsoleerd: muur-, vloer- en dakisolatie
– 9 zonnepanelen (320WP, geplaatst in 2021)
– Vloerverwarming op de begane grond (woonkamer, keuken en hal)
– Moderne keuken (2022) met inbouwapparatuur
– Moderne badkamer met tweede toilet (2022)
– 4 slaapkamers verdeeld over eerste en tweede verdieping (mogelijkheid voor 5 slaapkamers)
– Inpandige garage
– Cv-ketel Intergas, 2016
– Professioneel schilderwerk buitenzijde april 2025
– Gelegen in een rustige woonomgeving met voorzieningen en scholen in de buurt
Indeling
Begane grond:
Voortuin, entree, hal met meterkast, separaat toilet, toegang tot inpandige garage en trapopgang. Tuingerichte woonkamer met openslaande deuren en moderne open keuken aan de voorzijde.
Eerste verdieping:
Overloop, twee slaapkamers en moderne badkamer met inloopdouche, tweede toilet en wastafelmeubel.
Tweede verdieping:
Overloop met inbouwkast, cv-ketelopstelling, wasmachineaansluiting en twee slaapkamers.
Zolder:
Extra bergruimte.
Ben jij op zoek naar een moderne en instapklare gezinswoning met inpandige garage, zonnige tuin en vier slaapkamers in Kampen? Maak dan snel een afspraak voor een bezichtiging van de Luit 55! Voor een vrijblijvende waardebepaling van je huidige woning staan wij ook graag voor je klaar.
Kenmerken
-
Overdracht
- Vraagprijs € 579.500,- k.k.
- Status Beschikbaar
- Aangeboden sinds 3 dagen
- Aanvaarding In overleg
-
Type object
- Type object Woonhuis
- Soort woonhuis Eengezinswoning
- Type woonhuis Geschakelde twee onder één kapwoning
- Bouwjaar 1995
- Soort dak Zadeldak
- Dakmaterialen Pannen
-
Oppervlakte in inhoud
- Totaal woonoppervlakte 160 m2
- Externe bergruimte 1 m2
- Perceeloppervlakte 226 m2
- Achtertuin 95 m2 (10 meter diep en 9.5 meter breed)
-
Indeling
- Totaal kamers 6 kamers (4 slaapkamers)
- Aantal badkamers 1
- Badkamervoorzieningen Toilet, Dubbele wastafel, Wastafel, Wastafelmeubel, Inloopdouche
- Aantal woonlagen 4
- Voorzieningen Mechanische ventilatie, TV kabel, Buitenzonwering, Dakraam, Glasvezel kabel, Zonnepanelen
-
Energie
- Energielabel A
- Isolatie Dakisolatie, Muurisolatie, Vloerisolatie, Dubbelglas, Volledig geïsoleerd, HR glas
- Verwarming CV ketel, Vloerverwarming gedeeltelijk
- Warm water CV ketel
- CV ketel Nefit Trendline HRC25 CW4 (gas gestookt combiketel uit 2016, eigendom)
-
Kadastrale gegevens
- Perceel identificatie Kampen P 3487
- Oppervlakte 226 m2
- Eigendomssituatie Volle eigendom