Omschrijving
Welkom bij deze mooie duurzame drive in woning gelegen in Kampen. Dit huis biedt niet alleen veel ruimte met zijn 137m2 woonoppervlakte, maar ook allerlei goede kenmerken zoals een prachtig ingerichte tuin, een ruime inpandige garage, 12 zonnepanelen, hybride warmtepomp en airco’s
Het pand aan de Lisdodde 22 is een perfecte plek voor stellen, starters en gezinnen die op zoek zijn naar een woning die comfort, luxe en gemak combineert. Dit prachtige pand is gelegen in een rustige woonwijk in Kampen, dicht bij scholen, een sportschool, wandelparken en speeltuinen. Dit maakt het de ideale plek voor gezinnen. Verder heeft de woning goede toegang tot uitvalswegen, waardoor reizen gemakkelijk wordt.
De totale oppervlakte van de woning is 158 m2, met een inhoud van 557m3 en een energieklasse B. Het pand biedt een woonkamer van 25m2, vier slaapkamers en een zorgvuldig onderhouden interieur en exterieur.
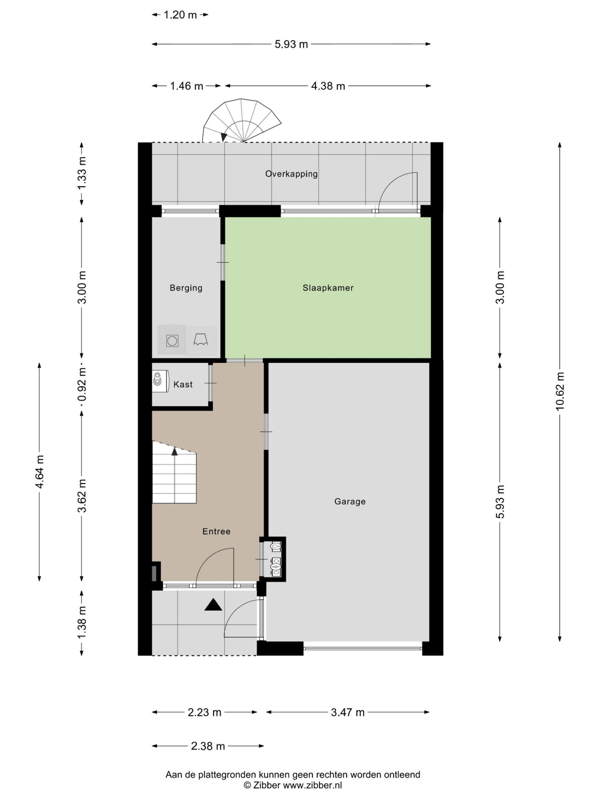
Indeling: begane grond
Bij binnenkomst in de hal is de toegang tot de garage, een ruime berging met wasruimte en de extra slaap-/werkkamer of tuinkamer.
Eerste verdieping:
De trap naar de eerste verdieping brengt je op een ruime overloop met toilet en wordt je verwelkomd door een ruime en lichte woonkamer, die samen met de ruime woonkeuken een perfect geheel vormt. De woonkamer geeft toegang tot het woning brede balkon op het zuidoosten waar je in een heerlijke avondzon kunt genieten van een goed glas wijn.
Tweede verdieping:
Op de tweede verdieping vind je nog drie ruime slaapkamers en een luxe badkamer uit 2019. De badkamer heeft een oppervlakte van 6m2 en is uitgerust met faciliteiten zoals een ligbad, toilet, douche, wastafel met meubel, voor jouw dagelijkse gemak.
De woning beschikt over een prachtig aangelegde tuin en ligt op het zuidoosten en is ideaal om te genieten van de zonnige dagen.
De woning beschikt over parkeergelegenheid op eigen terrein voor één auto en openbare parkeergelegenheid in de buurt. De garage heeft een oppervlakte van 21m2 en biedt de ruimte om eventueel de auto binnen te zetten of je fietsen te plaatsen en andere spullen in op te bergen.
Bijzonderheden:
– Woonoppervlak van 137m2
– Ruime woonkamer
– Badkamer voorzien van ligbad
– In totaal vier slaapkamers
– Tuin gelegen op het zuidoosten
– Garage en parkeergelegenheid op eigen oprit
– Voorzien van 12 zonnepanelen
– Hybride warmtepomp (2019)
– Airco’s (2019)
Dit prachtige familiehuis biedt jou en je gezin de perfecte plek om jullie thuis te noemen. Waarom zou je ergens anders naar kijken als dit huis alles heeft wat je zoekt? Neem contact met ons op voor een bezichtiging en laat deze kans niet aan je voorbijgaan.
Kenmerken
-
Overdracht
- Vraagprijs € 449.000,- k.k.
- Status Beschikbaar
- Aangeboden sinds 2 dagen
- Aanvaarding In overleg
-
Type object
- Type object Woonhuis
- Soort woonhuis Eengezinswoning
- Type woonhuis Tussenwoning
- Bouwjaar 1973
- Soort dak Plat dak
- Dakmaterialen Bitumineuze Dakbedekking
-
Oppervlakte in inhoud
- Totaal woonoppervlakte 137 m2
- Perceeloppervlakte 155 m2
- Achtertuin 41 m2 (6.63 meter diep en 6.24 meter breed)
-
Indeling
- Totaal kamers 5 kamers (4 slaapkamers)
- Aantal badkamers 1
- Badkamervoorzieningen Ligbad, Toilet, Douche, Wastafel, Wastafelmeubel
- Aantal woonlagen 3
- Voorzieningen Mechanische ventilatie, Airconditioning, Glasvezel kabel, Zonnepanelen, Natuurlijke ventilatie
-
Energie
- Energielabel B
- Isolatie Dakisolatie, Dubbelglas, HR glas
- Verwarming CV ketel, Vloerverwarming gedeeltelijk
- Warm water CV ketel
- CV ketel Nefit HR combi (gas gestookt combiketel uit 2019, eigendom)
-
Kadastrale gegevens
- Perceel identificatie Kampen P 1450
- Oppervlakte 155 m2
- Eigendomssituatie Volle eigendom