Omschrijving
15 karaktervolle appartementen in een voormalig militair schoolgebouw
Wonen in een voormalig militair schoolgebouw uit 1874; binnenkort in verkoop. De Kazerneschool is hier ontstaan in 1874. Een pand met een indrukwekkende historie, ooit gebouwd als militaire school. Vandaag krijgt dit robuuste gebouw nieuw leven met vijftien bijzondere appartementen, elk doordrenkt van sfeer en karakter.
Wat bleef: het statige trappenhuis, de hoge plafonds en de grote ramen die het licht royaal binnenlaten. Wat kwam: slimme plattegronden, duurzame installaties en eigentijdse afwerkingen. De appartementen hebben grotendeels een vergelijkbare indeling, met per verdieping verschillen in ligging en uitzicht.
Kenmerken op een rij
– 15 stijlvolle appartementen
– TURN KEY opgeleverd: direct wonen zonder zorgen
– Gelegen in een voormalig militaire school
– Rustig gelegen aan de Buiten Nieuwstraat
– Op loopafstand van de voorzieningen
– Energiezuinig
Appartement 1 Buiten Nieuwstraat 85 B EUR 325.000,-
Appartement 2 Buiten Nieuwstraat 85 A EUR 375.000,-
Appartement 3 Buiten Nieuwstraat 85 C EUR 325.000,-
Appartement 4 Buiten Nieuwstraat 85 D EUR 305.000,-
Appartement 5 Buiten Nieuwstraat 85 E EUR 307.500,-
Appartement 6 Buiten Nieuwstraat 85 F EUR 310.000,-
Appartement 7 Buiten Nieuwstraat 85 G EUR 305.000,-
Appartement 8 Buiten Nieuwstraat 85 H EUR 307.500,-
Appartement 9 Buiten Nieuwstraat 85 J EUR 310.000,-
Appartement 10 Buiten Nieuwstraat 85 K EUR 320.000,-
Appartement 11 Buiten Nieuwstraat 85 L EUR 310.000,-
Appartement 12 Buiten Nieuwstraat 85 M EUR 315.000,-
Appartement 13 Buiten Nieuwstraat 85 N EUR 315.000,-
Appartement 14 Buiten Nieuwstraat 85 P EUR 325.000,-
Appartement 15 Buiten Nieuwstraat 85 R EUR 315.000,-
Een rustige plek, midden in de stad
De Kazerneschool ligt op een plek waar rust en reuring samenkomen. Voorzieningen zoals winkels, horeca, de IJssel en de bibliotheek: allemaal op loopafstand. Hier woon je in de luwte, maar heb je alles dichtbij.
Ligging en uitzicht
Gelegen aan de Buiten Nieuwstraat, op loopafstand van de voorzieningen in het oude stadscentrum, zoals winkels, horeca, de IJssel en de bibliotheek. De appartementen op de verdieping bieden een prachtig uitzicht over de binnenstad van Kampen, terwijl de appartementen aan de IJsselkant uitkijken over de rivier en haar schilderachtige uiterwaarden.
Interesse? Schrijf je in! Inschrijfformulieren dienen uiterlijkwoensdag 15 oktober 2025 om 17.00 uur in het bezit te zijn bij Bonthuis Vaartjes Makelaars of Alpina Makelaardij in Kampen.
Zie jij jezelf al wonen in een van deze karaktervolle appartementen aan de Buiten Nieuwstraat? Laat je verrassen door het comfort, de ligging en de unieke sfeer van dit bijzondere project in hartje Kampen. Of je nu starter bent, doorstromer of gewoon toe aan iets nieuws ? Hier woon je zorgeloos en helemaal klaar voor de toekomst.
Schrijf je in op: dekazerneschool.nl
Kenmerken
-
Overdracht
- € 305.000,- k.k.
- Status Verkocht
- Aangeboden sinds 6 maanden
- Aanvaarding In overleg
-
Type object
- Type object Appartement
- Bouwjaar 2025
- Soort dak Samengesteld dak
-
Oppervlakte in inhoud
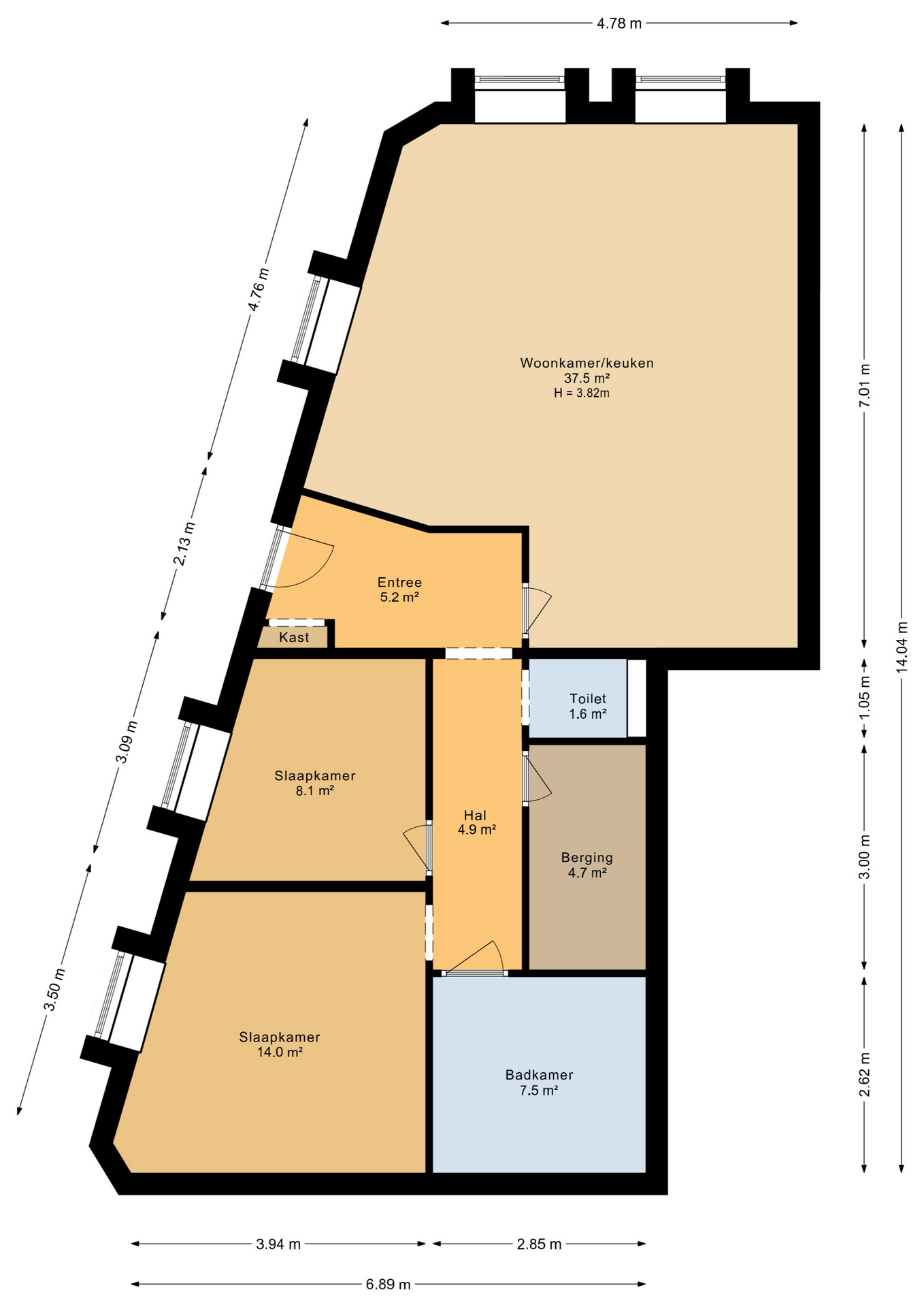
- Totaal woonoppervlakte 87 m2
- Perceeloppervlakte 356 m2
-
Indeling
- Totaal kamers 3 kamers (2 slaapkamers)
- Aantal badkamers 1
- Badkamervoorzieningen Ligbad, Wastafel
- Aantal woonlagen 1
- Voorzieningen Mechanische ventilatie, TV kabel
-
Energie
- Energielabel A+
- Isolatie Volledig geïsoleerd
-
Kadastrale gegevens
- Perceel identificatie Kampen F 18425
- Oppervlakte 356 m2
- Eigendomssituatie Volle eigendom