Omschrijving
Een prachtige, instapklare gezinswoning met veel ruimte, een moderne afwerking en een gunstige ligging nabij alle voorzieningen!
Welkom aan de Zandbergstraat; een rustige en kindvriendelijke straat in het hart van IJsselmuiden. Hier staat deze ruime en goed onderhouden gezinswoning, waar comfort, ruimte en moderne voorzieningen perfect samenkomen. Dankzij de gunstige ligging heb je alle dagelijkse voorzieningen binnen handbereik: winkels en supermarkten aan het Markeresplein liggen op loopafstand, terwijl zowel het station Kampen, de binnenstad van Kampen als de voorzieningen van IJsselmuiden eenvoudig met de fiets te bereiken zijn. Kortom: het gemak van de stad, met de rust van een fijne woonwijk.
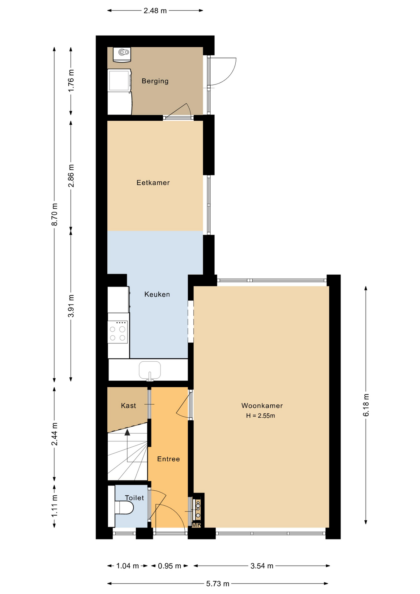
Begane grond:
Via de hal kom je binnen in de lichte en sfeervolle woonkamer met veel daglicht. De woonkamer leent zich voor een mooie zithoek. Daarnaast is er in de woonkamer ook nog veel ruimte voor een speelhoek voor de kinderen of een extra eettafel. Op de benedenverdieping is een airco (2023) geplaatst. Ideaal voor koelte in de zomer, maar ook voor warmte in de winter. In combinatie met de zonnepanelen houdt het de energielasten laag.
Via de woonkamer bereik je de keuken. Deze keuken is modern en van alle gemakken voorzien! Zo zit hier een inductiekookplaat in, een combi-oven/combimagnetron, en een vaatwasser. In de keuken is er een ruimte voor een zithoek gemaakt.
Via de keuken bereik je de bijkeuken. Hier staan de vriezer, wasmachine en de droger opgesteld. Tevens bevindt zich hier de opstelplaats van de cv ketel (Nefit 2023). 
Eerste verdieping:
via de hal met meterkast, toilet en bergruimte bereik je de bovenverdieping. Via de overloop bereik je de eerste verdieping, waar zich drie slaapkamers bevinden. Momenteel zijn deze ingericht als een master bedroom en twee kinderkamers, maar uiteraard kun je ze naar eigen wens gebruiken.  De slaapkamers zijn voorzien van zonwering, wat zorgt voor extra comfort tijdens zonnige dagen.
De badkamer is modern afgewerkt en voorzien van een zwevend toilet, inloopdouche, badmeubel met wastafel en een handdoekradiator. De inbouwspotjes en het strakke tegelwerk zorgen voor een eigentijdse uitstraling.
Zolder:
via een vaste trap naar zolder bereik je de bovenverdieping. Hier is een ruimte gemaakt voor een thuiswerkkamer. Deze ruimte kan ook gebruikt worden als bergruimte, kinderslaapkamer of hobbykamer. Door de knieschotten aan de zijkant van de woning zijn hier ruime opbergmogelijkheden. 
Tuin:
De tuin voelt ruim en netjes aan. Hier heb je talloze mogelijkheden om hier en heerlijke plek van te maken! Via de tuin heb je toegang tot 2 bergingen. Door de ligging op het westen geniet je hier van de middagzon en kun je ’s avonds heerlijk ontspannen tijdens de zonsondergang. In de tuin bevinden zich twee bergingen, beide voorzien van elektra en verlichting. Via één van de bergingen heb je toegang tot de achterom die langs de woning loopt.
Bijzonderheden:
– Nadat het energielabel C is afgegeven, zijn er nog 10 zonnepanelen op het dak van de woning geplaatst!
– De zolderverdieping heeft een hoogte van 1,69 cm. Deze is dus net wat lager dan de begane grond en eerste verdieping. Perfect voor een thuiswerkkamer.
– Het schilderwerk aan de buitenkant van de woning is in 2022 nog gedaan.
– Zeer lage energielasten!
– Jaloezieën in woonkamer aan de voor- en achterzijde zijn elektrisch.
– Op de eerste verdieping is op bijna alle slaapkamers elektrische zonwering aanwezig. 
Ben je op zoek naar een comfortabele woning waar je zo in kunt trekken?
Plan dan snel een bezichtiging in en ontdek zelf de charme van deze woning aan de Zandbergstraat!
Kenmerken
- 
                        Overdracht- Vraagprijs € 330.000,- k.k.
- Status Beschikbaar
- Aangeboden sinds 4 dagen
- Aanvaarding In overleg
 
- 
                        Type object- Type object Woonhuis
- Soort woonhuis Eengezinswoning
- Type woonhuis Tussenwoning
- Bouwjaar 1966
- Soort dak Zadeldak
- Dakmaterialen Pannen
 
- 
                        Oppervlakte in inhoud- Totaal woonoppervlakte 88 m2
- Externe bergruimte 21 m2
- Perceeloppervlakte 176 m2
- Achtertuin 51 m2 (0.11 meter diep en 0.08 meter breed)
 
- 
                        Indeling- Totaal kamers 7 kamers (4 slaapkamers)
- Aantal badkamers 1
- Badkamervoorzieningen Toilet, Douche, Wastafel, Wastafelmeubel, Inloopdouche
- Aantal woonlagen 3
- Voorzieningen Mechanische ventilatie, Rolluiken, Airconditioning, Zonnepanelen
 
- 
                        Energie- Energielabel C
- Isolatie Dakisolatie, Dubbelglas
- Verwarming CV ketel
- Warm water CV ketel
- CV ketel Nefit HR (gas gestookt combiketel uit 2023, eigendom)
 
- 
                        Kadastrale gegevens- Perceel identificatie IJsselmuiden B 4091
- Oppervlakte 176 m2
- Eigendomssituatie Volle eigendom
 
 
             
             
             
             
             
             
             
             
             
             
             
             
             
             
             
             
             
             
             
             
             
             
             
             
             
             
             
             
             
             
             
             
             
             
             
             
             
             
             
             
             
             
             
             
             
             
             
            