Omschrijving
Op een van de mooiste locaties van Arnhem, aan de Kemperbergerweg, verrijzen binnenkort twee exclusieve twee-onder-één-kapwoningen met garage. De linkerhelft is al verkocht, voor de rechterhelft (bouwnummer 2) zijn wij nog op zoek naar een enthousiaste koper. Omgeven door bos, toch dicht bij alles, dit is wonen zoals het bedoeld is. De bouw start deze zomer, dus het moment om in te stappen is nu.
Bijzonderheden Bouwnummer 2
– Sanitair en tegelwerk inbegrepen via een stelpost van € 12.500,- incl. 21% btw
– Exclusief levering en montage van een keuken
– Circa 168 m² woonoppervlakte
– Woningtype 02 (rechter woning) op een kavel van 427 m²
– Buitenkozijnen en ramen van hardhout met HR++ glas
– Comfortabele vloerverwarming op de begane grond (m.u.v. berging/garage)
– Lage temperatuur radiatoren op de 1e verdieping
– Geïsoleerde berging/garage — in te richten als opslag óf als slaapkamer op de begane grond
– Dakkapel aan de voorzijde van de zolder bij woningtype 02 (rechter woning)
– Woningborg-garantieregeling van toepassing
– Vele opties mogelijk in samenwerking met het bouwbedrijf
Indeling
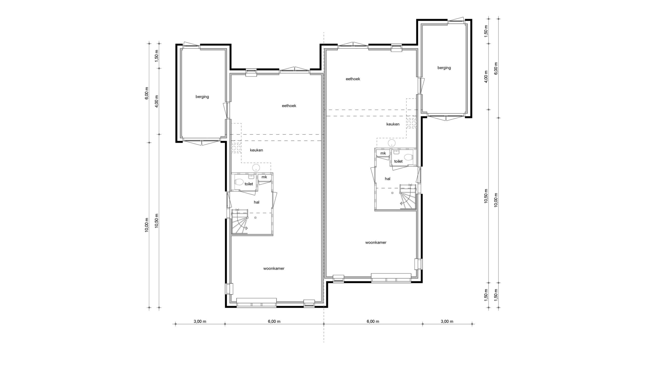
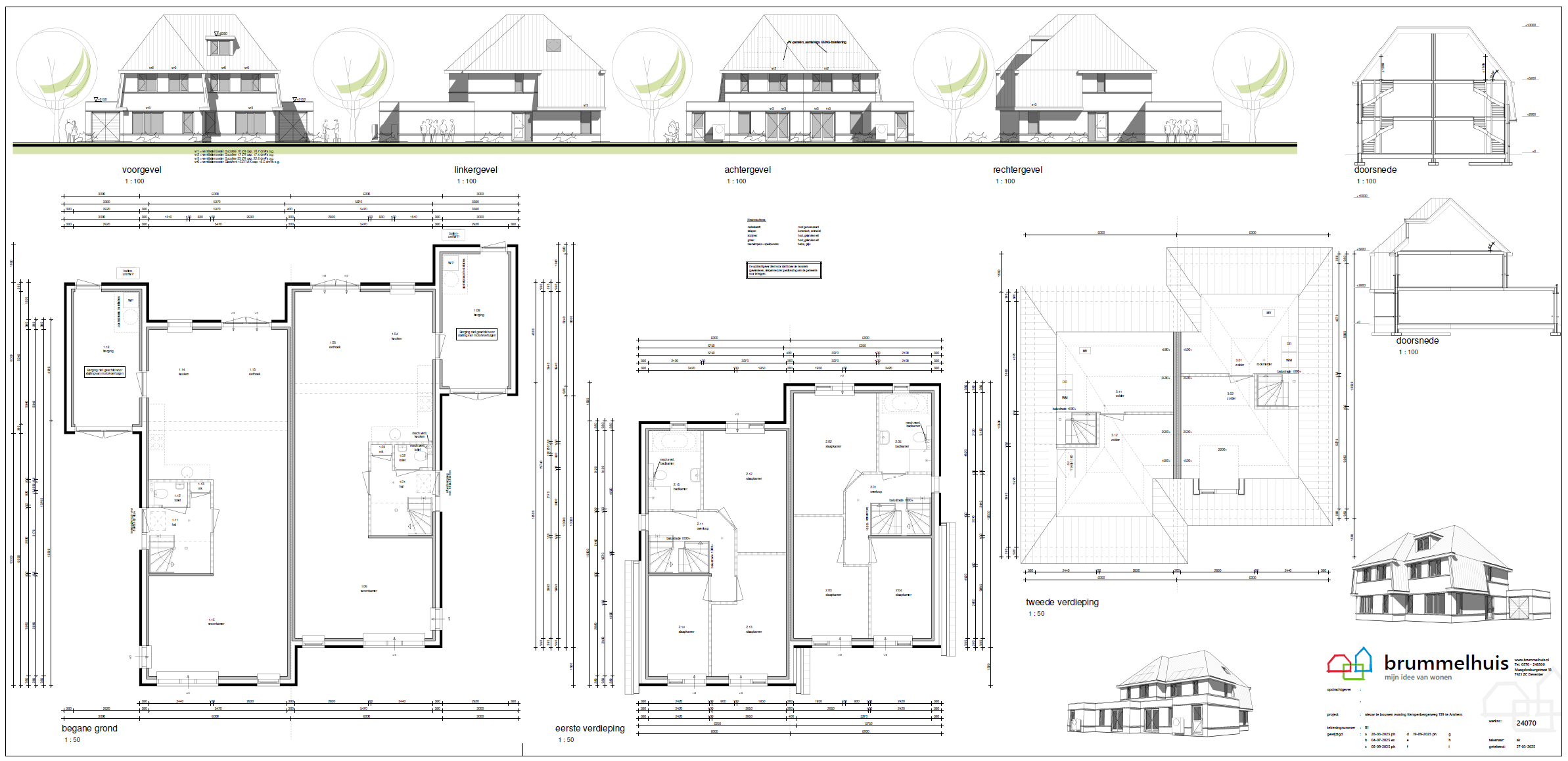
Begane grond
De entree bevindt zich aan de zijkant van de woning. Direct rechts vind je het toilet en de meterkast; links de trapopgang. Verder naar binnen open je de deur naar de lichte woonkamer aan de voorzijde en de keuken aan de achterzijde. Dankzij de vele ramen baadt de woonkamer in het licht. De keuken is via openslaande deuren rechtstreeks verbonden met de tuin — ideaal voor die zomerse avonden buiten. De gehele begane grond (m.u.v. berging/garage) is voorzien van vloerverwarming.
Via de keuken bereik je de geïsoleerde berging/garage: veelzijdig inzetbaar als opslag of extra slaapkamer. Hier wordt ook de lucht-water warmtepomp geplaatst (gecombineerd met een ca. 185 liter interne boiler), met ruime capaciteit voor verwarming en warm tapwater.
1e verdieping
Via de overloop zijn drie ruime slaapkamers bereikbaar — in te richten als (kinder)slaapkamer, kastenkamer, werkkamer of hobbykamer. De badkamer biedt ruimte voor een toilet, wastafel, inloopdouche en een ligbad (meerwerk).
Zolder
Een vaste trap leidt naar de voorzolder, waar zich de aansluitingen voor wasmachine en droger bevinden, evenals de mechanische ventilatieunit.
Locatie: Schaarsbergen, het beste van twee werelden
Schaarsbergen, ontstaan omstreeks 1850 als een klein heidedorpje, is vandaag de dag “ons dorp in het groen”. Maar liefst 90% van het oppervlak bestaat uit natuurgebied. Je woont ingeklemd tussen de mooiste natuur van de Veluwe: Sonsbeek, Gulden Bodem en Menthenberg in het zuiden, Warnsborn en ’t Zand in het westen, Nationaal Park De Hoge Veluwe in het noorden en Landgoed Schaarsbergen in het oosten.
En toch: het centrum van Arnhem, station Arnhem Centraal, Oosterbeek en Velp liggen op een steenworp afstand. Scholen, kinderdagverblijven, sportfaciliteiten, het Nederlands Openluchtmuseum en Burgers’ Zoo — allemaal binnen handbereik. De uitvalswegen A12 en A50 zijn vlot te bereiken.
Kortom: de bijna onmogelijke combinatie van uitgestrekte natuur én bruisend stads- en dorpsleven.
Interesse?
Neem contact op met Alpina Makelaardij Zevenaar via 0316-580860 of met Franke & Van der Aa Makelaars via 026-3617923.
Kenmerken
-
Overdracht
- Vraagprijs € 975.000,- v.o.n.
- Status Beschikbaar
- Aangeboden sinds 3 weken
- Aanvaarding Direct
-
Type object
- Type object Woonhuis
- Soort woonhuis Eengezinswoning
- Type woonhuis Twee onder één kapwoning
- Bouwjaar 2026
- Soort dak Samengesteld dak
- Dakmaterialen Pannen
-
Oppervlakte in inhoud
- Totaal woonoppervlakte 168 m2
- Achtertuin 90 m2 (10 meter diep en 9 meter breed)
-
Indeling
- Totaal kamers 6 kamers (4 slaapkamers)
- Aantal badkamers 1
- Badkamervoorzieningen Toilet, Wastafel, Inloopdouche
- Aantal woonlagen 3
- Voorzieningen Mechanische ventilatie, Glasvezel kabel
-
Energie
- Energielabel A++
- Isolatie Volledig geïsoleerd
- Verwarming Vloerverwarming gedeeltelijk, Warmtepomp