Woningen Arnhem – Gabriëlstraat 59-3

Gabriëlstraat 59-3 6813 KN Arnhem

€ 330.000,- k.k.
  • -
  • 86 m2
  • 2
  • C
Bereken je maandlasten

Omschrijving

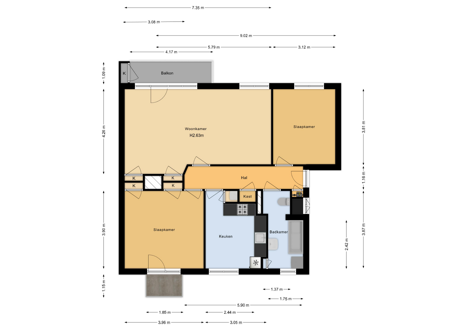
Op fantastische locatie in het groen en op korte afstand van centrum gelegen, ruim en licht 3-kamer appartement met in totaal 86 m2 woonoppervlakte, berging (6.6 m2) in de onderbouw en twee balkons (totaal 7.2 m2).

Kenmerken

  • Overdracht

    • Vraagprijs € 330.000,- k.k.
    • Status Beschikbaar
    • Aangeboden sinds 2 dagen
    • Aanvaarding In overleg
  • Type object

    • Type object Appartement
    • Bouwjaar 1955
    • Soort dak Plat dak
    • Dakmaterialen Bitumineuze Dakbedekking
  • Oppervlakte in inhoud

    • Totaal woonoppervlakte 86 m2
    • Externe bergruimte 7 m2
  • Indeling

    • Totaal kamers 3 kamers (2 slaapkamers)
    • Aantal badkamers 1
    • Badkamervoorzieningen Ligbad, Toilet, Wastafel, Wastafelmeubel, Wasmachineaansluiting
    • Aantal woonlagen 1
    • Voorzieningen Natuurlijke ventilatie
  • Energie

    • Energielabel C
    • Isolatie Muurisolatie
    • Verwarming CV ketel
    • Warm water CV ketel
    • CV ketel HR combi (gas gestookt combiketel uit 2017, eigendom)
  • Kadastrale gegevens

    • Perceel identificatie Arnhem M 4026
    • Eigendomssituatie Volle eigendom

Locatie

Gabriëlstraat 59-3 6813 KN Arnhem

€ 330.000,- k.k.
  • -
  • 86 m2
  • 2
  • C
Bereken je maandlasten